Exposé Halle 67

Exklusive Hallenflächen für Kieler Unternehmen am Wasser

Lindenau Halle 67 Lage

Nutzungseinheiten:  1

Flächen: 625,19 m²

Kaltmiete: 4-6 €/m²

Ideal als Handwerks-oder Produktionshalle mit Außenwirkung im produktivem Gewerbeumfeld

Sonstiges: 
Weitere Lagerflächen, sowie Stellplätzen auf dem Gelände verfügbar

Ab sofort Bezugsbereit

Lindenau Halle 67

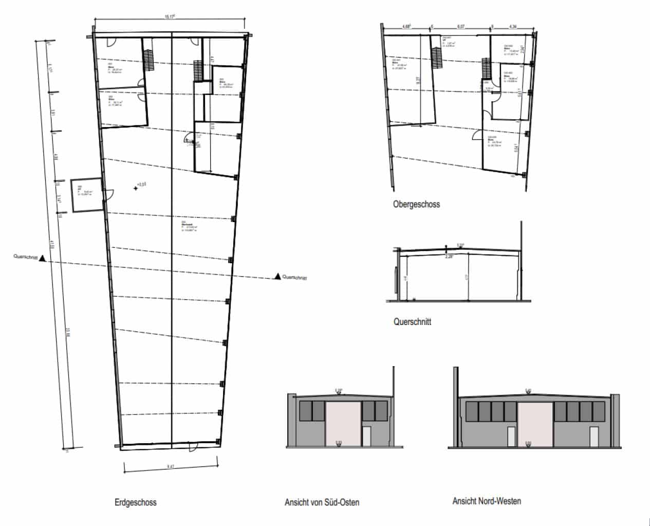
Halle 67

Nutzungseinheiten:  1

Flächen: 625,19 m²

  • Hallenfläche: 413,62 m²
  • Nebenräume: 205 m²
  • Verkehrsfläche: 6,57 m²

Bad: geteilte Sanitäranlage

Baujahr:  1980

Objektzustand: Instandsetzung 2024

Heizung: /

Name(erforderlich)

PDF-Datei mit allen Mietangeboten

„Der maritime Marktplatz am Wasser wird Firmen und Mitarbeitern vollkommen neue Kunden- und Kommunikationsmöglichkeiten geben und damit mehr Erfolg“

Die Immobilie ist mit der Fördefährlinie, dem Verkehrsnetz der KVG und gut ausgebauten Radfahrwegen zu erreichen. Über die B503 gelangen Sie zügig in die Innenstadt.
Die Entfernung zum Flughafen beträgt 2 km, wobei das Gebäude außerhalb der Einflug
-schneise liegt.
Die Umgebung ist vielseitig. In 1,4 km Entfernung befindet sich der Falckensteiner Strand, sowie de Hochseilgarten. Verschiedene Gastronomieangebote, die Einkaufszone Friedrichsort und benachbarte Wohn- und Gewerbegebiete
Machen den Standort attraktiv.

Heute setzen Sie Ihren Mitarbeitern und der Zukunft der Firma mit direktem Strandzugang, Meeresluft und einem spannendem Umfeld anderer Firmen die richtigen Anreizpunkte und profitieren vom Erfolg des Gesamtgeländes.

Mit gleichgesinnten Unternehmen im Maritimen Gewerbepark gemeinsam in die Zukunft entwickeln.

Wir bieten: 

  • Großzügige Hallenflächen direkt am Wasser
  • Direkt an der Kieler Förde, fußläufig 3 Minuten zum Dampferanleger am Skagerrakufer, Flughafen 3 KFZ-Minuten, eigene Bushaltestelle, Parkplätze, Anleger,
  • Cafe, Meeting Points,
    Veranstaltungsorte,
  • Wohnmöglichkeiten im Zusammenhang mit Ihrem Betrieb
  • Parkplätze: 10 bis 50
  • Gelände punktuell für Veranstaltungen bis 5.000 m²
  • Lager- Handwerker- und Produktionshallen

Der Maritime Gewerbepark an der Kieler Förde bietet Ihnen die ideale Lösung für Ihre Hallenflächen. Profitieren Sie von der einzigartigen Lage, den flexiblen Flächen und der inspirierenden Gemeinschaft. Kontaktieren Sie uns noch heute für weitere Informationen und einen Besichtigungstermin!

Logo-Lindenau-Park

Ein Angebot aus dem
Westufer Gewerbe-Park in Kiel

Telefon: 0431 / 220 92-0
E-Mail: info@bootswerft-rathje.de